This week I really need to nail down my amateur skills on Sketchup – the software I’ve chosen to try and replicate the exhibition spaces to play around with layouts
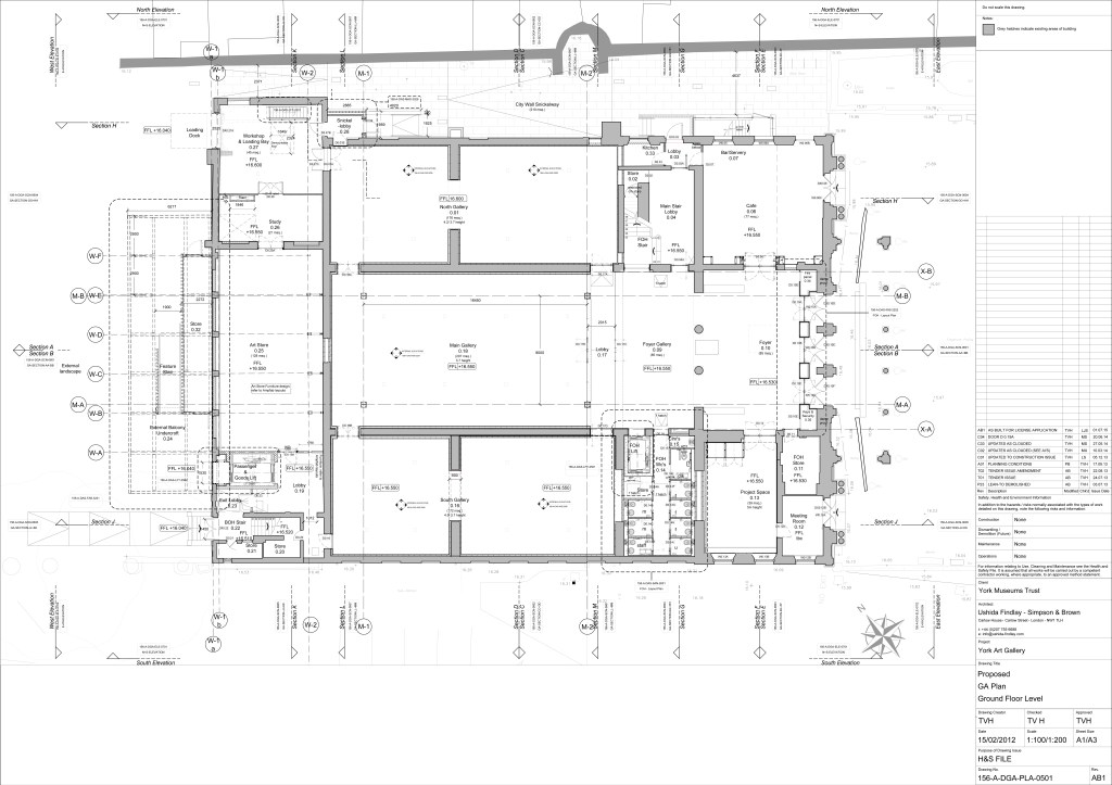
I focussed initially on York Art Gallery for the immersive space – I managed to find the floorplans online to get a more accurate view of the exhibition spaces available. I initially wanted this exhibit in the upper floor of the gallery as this is a really open and large space.


however upon visiting the gallery, it’s clear that the galleries on the ground floor are much better for immersive expereinces.


My focus with this exhibit is to highlight the fooding impact for York and on our City. I’ve taken the below excerpts from newpaper articles:
‘Nightmare’ flooding hits York after rivers overflow. Hundreds of people in York are being evacuated as “nightmare” flooding continues to batter parts of northern England. Six severe flood warnings are now in place across the city after the Rivers Foss and Ouse burst their banks. Up to 3,500 properties in the city are at risk and between 300 and 400 people are being evacuated. Several residents near the River Foss are though to be trapped in their homes. York floods: Hundreds evacuated and swathes of historic city underwater as rivers reach record levels. Hundreds of people have been evacuated from their homes in York after the city’s two rivers burst their banks, flooding houses, shops, businesses and threatening historical buildings. The River Ouse is up to four metres above its typical level but will not peak until tomorrow afternoon, while the River Foss is hitting record heights in urban areas. UK floods: Extra soldiers sent to stricken areas. Some 500 soldiers have now been brought in to deal with “unprecedented” flooding in Yorkshire and Lancashire. A thousand more are on stand-by after David Cameron vowed to help people in “their hour of need”. Rescuers have been evacuating homes in York where water levels are still rising, and thousands of people in north-west England are without power. There are scores of flood warnings in England, Wales and Scotland – more than 25 severe, meaning danger to life. On Sunday, the government said it was deploying a further 200 soldiers to affected areas on top of the 300 who were already on the ground.After chairing an emergency conference call of the government’s emergency committee Cobra, the prime minister said the “level of the rivers plus the level of rainfall has created an unprecedented effect, and so some very serious flooding”.
I think including real words from newspapers from the 2015 floods is a powerful way of highlighting the major issues faced when we had to deal with our most recent devastating flood.

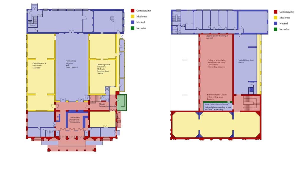
I recreated the first layout of the room that would be available at the Art Gallery – here you can see it’s divided into two spaces which works well for blowing up the news articles and wording for impact

I tried uploading the articles onto the walls much larger than usual and to create a sort of confusing and momentarily disorienting environment. I would also include area specific audio, with clips of news readings or locals directly over the visitor, shrouding them in sound and audio.

I then considered the other room and the idea of bringing in recylced rain to fall in front of the images – visitors can touch and feel this water as it’s pumped round the system. This space would be quiet and reflective with the sound of the water.

This is a second example of the rain fall infront of an image. Perhaps having a gallery of images which show the most devastating effects of the floods.
Using a mock up of the room at York Art Gallery I was able to transcribe some clippings from the newspaper onto the walls:

At the back end of the room is a good example of the gigapixel screen – visitors can use their hands to touch and manipulate the screen to zoom into large images and immerse themselves in the environment. Through exploration in this manner, it would be a good educational tool for underdstanding the climate impact on other areas of the world.


By utilising sand sculptures along the Ouse, this semi-permanent feature would remain on display throughout the winter, only being washed away when the River floods (as it does every year). People would be invited to use a pubic sandbox to create their own sculptres and add to the display. They can then track the progress of the sand scupltures on Social Media and the app to watch it be washed away.
AR around the city invites users to experience the city in a new light – this has the opportunity to provide both negative and positive reactions – with green walls growing up the minster and green flood plains introduced along the banks of the City.


The greenhouses set up in York Museum Gardens provides an immersive, tangible and educational experience to wander around different temperatures and plants.







